DA2026/0310
South Curl Curl SLSC has lodged its development application, DA2026/0310.
Visit the application page to stay informed.
South Curl Curl SLSC has lodged its development application, DA2026/0310.
Visit the application page to stay informed.
We exhibited a proposal for upgrades to the South Curl Curl Surf SLSC (the Club) facilities between 31 October and 30 November 2025. We received responses from 170 people.
Feedback on the proposal indicated a high level of support for the extensions, acknowledging the service the Club provides the community and how the new facilities will support life-saving development and skills training.
There were a smaller number of people who objected to the proposed upgrades, citing loss of public access, loss of beach and ocean views and that the upgrades were not necessary.
More information, including all comments received, is available in the Community and Stakeholder Engagement Report.
The Club lodged a Development Application (DA2026/0310), taking your feedback into consideration to refine the plans.
The DA will be assessed by an independent planning panel (not Council), noting that the facility is a Council-owned building.
If the DA is approved, the Club intends to seek grant funding to undertake the proposed construction works. These improvements aim to ensure that the Club can continue to provide vital lifesaving services, youth development programs, and community safety education for generations to come.
For further information regarding the DA or to make a submission, please visit Council's website.
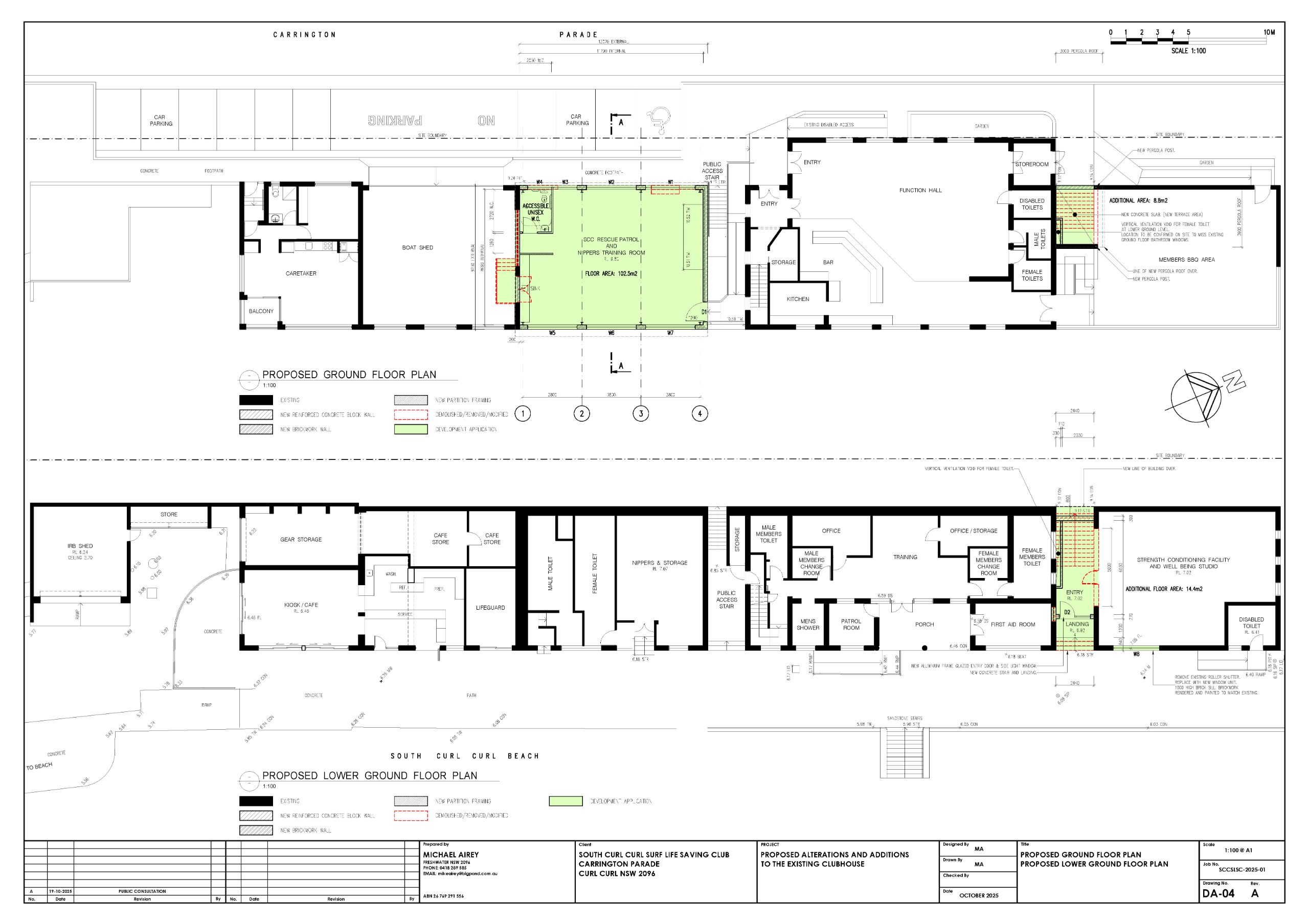
The current Club facilities no longer adequately meet the needs of the growing membership or the increasing demands of modern lifesaving, training, and wellbeing activities. Upgrading the spaces will enable the Club to continue delivering essential community services and enhance safety, education, and member wellbeing.
The proposed changes include:
Image 1 of 2
Drag the slider left and right to view the existing plans and compare with the proposed plans.
This room will enhance patrol readiness and provide a modern, dedicated space for education, simulation training, and first aid instruction - benefiting both volunteer lifesavers and the broader community through outreach programs and beach safety courses. There are 3 main benefits of this room:
This room will provide members and the Club's competitor athletes with access to strength, conditioning, and recovery equipment designed to improve fitness, reduce injury, and enhance overall wellbeing. With te Club having a proud surf boat community of just under 100 competitors, this requires a large amount of dedication and time in a space that allows teams of 4 to practice their row training together - simulating the competitive environment.
The Club has numerous National, State and Branch championship teams that also compete at Trans-Tasman competitions. In addition, the Champion Lifesaver program targets their Cadet Youth, and this facility helps to teach them proper strength conditioning under the watchful eye of their coach. This will also allow mental wellness and support sessions to be delivered. This facility will not only support elite lifesavers and competitors but also encourage healthy, active lifestyles across the local community.
For more than a century, South Curl Curl Surf Life Saving Club has played a significant role in the Northern Beaches community. Established in 1918, the Club has provided volunteer patrols on one of Sydney’s most active surf beaches, helping to ensure the safety of both locals and visitors.
Today, the Club has around 1000 members, including over 350 active patrolling lifesavers who volunteer their time on weekends and public holidays. Each year, members carry out numerous preventive actions, rescues, and first aid treatments. In addition to regular patrols, the Club’s after-hours call-out team assists with emergency responses as part of its goal to promote public safety.
The Club also runs a range of community and youth programs. Its Nippers program introduces approximately 400 children to surf safety and lifesaving skills, encouraging confidence and awareness in the ocean environment. Many participants later continue as patrolling members. The Youth Cadet Program (for 12 to 18 year olds) provides opportunities to develop ocean skills and community engagement - supporting positive connections for young people in the area.
Looking ahead, the Club is planning 2 projects within its existing building: a rescue patrol and Nippers training room, and a performance, strength, and wellbeing room. These projects are intended to support lifesaving operations, member development, and community safety into the future.
If you've got questions about the concept plans, have a look at the frequently asked questions.
The Club needs more space to meet the growing demands of its lifesaving, training, and community programs.
Expanded facilities will enhance patrol safety and visibility, accommodate all Nippers and Special Needs Rippers during poor weather, and provide modern areas for education, fitness, and wellbeing.
These improvements will ensure the Club can continue protecting lives and strengthening the community for the next 100 years.
If the DA is approved, the Club will apply for grant funding to fund the works.
The Club will take all feedback into consideration before lodging the DA.
As the building is owned by Council, the DA will be assessed by the North Sydney Planning Panel.
The Club has sought community feedback before a Development Application is lodged. Pending the outcomes from engagement, the DA will be lodged in early 2026.
Works won't commence until after DA consent is granted and funding secured.
Depending on the location of your home, your view may be impacted by the changes proposed to the current observation deck. We encourage you to view the plans and share your feedback via the comment form.
Timeline item 1 - complete
Nov 2025: Open and listening
We exhibited the concept plans for the community to review
Timeline item 2 - complete
Dec 2025 - Jan 2026: Under review
We reviewed all responses received and prepared a report on the outcomes
Timeline item 3 - complete
Feb 2026: Sharing what we heard
We shared what we learnt from your feedback in our Community Engagment Report
Timeline item 4 - complete
Mar 2026: Development Application lodged
DA2026/0310
| Name | Building Assets - Planning, Design & Delivery Team |
|---|---|
| Phone | 1300 434 434 (during business hours) or 131 450 (for translation services) |
| council@northernbeaches.nsw.gov.au | |
| In writing | marked 'South Curl Curl SLSC - Building works', Northern Beaches Council, PO Box 82, Manly NSW 1655. |
Contact customer service on:
We
acknowledge the Traditional Custodians and their Country on which we
gather today. By these words we show our respect to all Aboriginal
people. We acknowledge Elders past, present and emerging and the spirits
and ancestors of the Clans that lived in this area.
Connect with us on social media

We, Northern Beaches Council, take our privacy obligations seriously and we’ve created this privacy policy to explain how we treat your personal information collected on this website.
Personal information is information we hold which is identifiable as being about you. Supply is voluntary, however non-supply may prevent us from responding to your specific comments.
Our collection, use and disclosure of your personal information is regulated by the Information Protection Principles under the NSW Privacy and Personal Information Protection Act 1998. Collection, use and disclosure of your personal information by Social Pinpoint is regulated by the Australian Privacy Principles under the Privacy Act 1988. You can find more information about your privacy rights at the Privacy Commissioner's web site: http://www.oaic.gov.au.
This site is owned and operated by Northern Beaches Council using software licensed from Social Pinpoint. For details on how Northern Beaches Council collects and protects your personal information, refer to this Privacy Policy. For details of how Social Point, by Open Point, may access personal information, please refer to Open Point’s Privacy Policy.
We collect information from you when you register to use this site. This includes your email address and additional demographic information as provided by you on the registration form.
Please note that you are able to browse any publicly accessible sections of this website completely anonymously without signing up.
The content you create as part of your interactions with this website. These can include responses to surveys, comments on discussion forums, or any of the other engagement opportunities available here.
We collect information about your usage of the site, such as pages visited, documents downloaded, etc.
We collect this information in order to:
• analyse and interpret it to help meet our objectives and obligations
• communicate information to you about engagement opportunities, events and other initiatives
• respond to enquiries and otherwise engage with stakeholders.
Our website may contain links to other websites. Those links are provided for convenience and may not remain current or be maintained. We are not responsible for the privacy practices of linked websites, and we suggest you review the privacy policies of those websites before using them.
Information is being collected by Northern Beaches Council and will be stored by Social Pinpoint, 1st Floor, 119-1215 Beaumont Street, Hamilton NSW 2303.
All Australian data, including backups, are hosted within Australia’s federal jurisdiction and are located in secure data facilities in Sydney only. Australian data is not situated or moved offshore to international servers.
Subject to applicable local laws and regulations, you may have some or all of the following rights with respect to your personal data:
• to access your personal data and to rectify any inaccuracies within that personal data
• to request for the erasure of your personal data residing with us
• to request your personal data in portable, machine-readable format
• to withdraw your consent to our processing of your personal data.
If you wish to contact us with a request relating to personal information, please use the contact details set out below and ensure you include your name and contact details. We may need to verify your identity before providing you with your personal information.
In some cases, we may be unable to provide you with access to all your personal information and where this occurs, we will explain why. We will deal with all requests for access to personal information within a reasonable timeframe.
For further information about our privacy policy and related information practices, or to access or correct your personal information, or make a complaint, please contact us on council@northernbeaches.nsw.gov.au
The following Terms and Conditions govern the use of Have your say (“the site”). The platform is owned and operated by us, Social Pinpoint Pty Ltd, on behalf of Northern Beaches Council.
By accessing and using this site, you are choosing to accept and comply with the Terms presented throughout this agreement as well as the Privacy Policy and Moderation Policy. These Terms apply to all visitors and users of this site. Linked sites, affiliated services or third party content or software have their own Terms that you must comply with. If you disagree with any of the Terms presented in this agreement, you may discontinue using the site immediately.
If you are under 18 years old, please ensure that your parent or guardian understands and accepts these Terms and Conditions (including the Privacy Policy and Moderation Policy).
What are the conditions with a user’s account?
While using the site, you must not violate any applicable laws and regulations. It is our duty to protect the confidentiality of content you provide on our site in accordance with our Privacy Policy. When you create an account with us, you must always provide us with accurate information. Failure to provide accurate information violates the Terms, which may result in immediate termination of your account on our service. You are responsible for protecting your own password you use for this site and for any activities done under that password. Unauthorised use of your password or account must be immediately reported to Social Pinpoint. In some cases, we or our agents may require access to your user accounts to respond to technical issues.
We are not responsible for the content on the site that has been provided by the users of the site. Any content posted by you is subject to the rules of our Moderation Policy. Your contribution to the site may be edited, removed or not published if we consider it inappropriate (refer to Moderation Policy). Contributors should also be aware that their posts may remain online indefinitely. Where practical, you may choose not to identify yourself, deal with us on an anonymous basis or use a pseudonym.
What does Social Pinpoint require from their users?
You must understand and agree that, without limitation:
all information, data, images and other materials are the sole responsibility of the person from whom the content originated; you are prohibited from advertising or offering to sell or buy any goods and services you cannot transmit Content that contains software viruses or programs designed to change or destroy the functionality of any computer software or hardware; or you cannot collect or store personal data about other users of the site you cannot impersonate any person or entity, including without limitation to a Social Pinpoint representative you cannot interrupt or interfere with the site or servers or networks connected to the site you cannot attempt to gain unauthorised access to the site or other use accounts
Can your account be suspended or terminated?
We may terminate or suspend access to your site and/or account immediately, without prior notice, including without limitation if you breach the Terms. We may immediately deactivate or delete your account and all the related files and information in your account. After your account has been terminated, the content you have posted may also remain indefinitely on the site.
If you want to terminate your own account, please send an email to info@socialpinpoint.com.
Governing Law
These Terms shall be governed in accordance with the laws of Victoria, Australia, without regards to its conflict of law provisions.
Indemnification
Social Pinpoint, its subsidiaries, affiliates, officers, agents, licensors and other partners are not responsible for any loss, liability, claim, or demand, including legal fees, made by any third party due to or arising from a breach of this agreement and/or any breach of your representations and warranties set forth above.
What content does Social Pinpoint own?
Your Say website contains the copyrighted material, trademarks, patents, trade secrets and other proprietary information (“Intellectual Property”) of Social Pinpoint and its suppliers and licensors. Social Pinpoint owns and retain all proprietary rights in the intellectual property. All intellectual property in the content of this site including without limitation to text, software, source code, pages, documents and online graphics, photographs, sounds, audio, video and other interactive features are owned by or licensed to us.
Any original content that you submit or post on our site may be made available to the public and allows users to share your content (with the end user acknowledging your contribution) under the Creative Commons Attribution-ShareAlike 4.0 Australian License.
Except for Intellectual Property which is in the public domain or for which you have been given written permission, you may not copy, alter, transmit, sell, distribute any of the Intellectual Property.
We are not responsible for your communications or dealings, including payment and delivery of goods or services, with a third party found via our website. Any loss or damage incurred from those communications or dealings are solely between the user and the third party.
Disclaimer and Warranties
Users must agree that you use of the site is at your own risk. We make no warranty that the site will meet your requirements or be uninterrupted or error-free. Any material that the user downloads through the site is done at their own risk and are responsible for any damages to their computer system or loss of data.
What happens if these Terms change?
We reserve the right, at our sole discretion, to modify or replace these Terms at any time without notice. The most recent version of the Terms can be seen on this page. By continuing to access or use our site after those revisions become effective, you agree and will comply to the revised terms. If you do not agree to the revised terms, please discontinue using our site.
Contact Us
If you have any questions about these Terms, please contact us at info@socialpinpoint.com
Enter your email address below. We will send you instructions to reset your password.
Back to Log in
Creating an account helps us better understand your needs and the needs of the community.
Sign up with email
Already have an account? Log in now
Thank you, your account has been created.
You’re using an outdated browser.
Some features of this website may not work correctly. To get a better experience we strongly recommend you download a new browser for free:
Would you like to follow this project to receive email updates?